Модульный дом 

52 м2

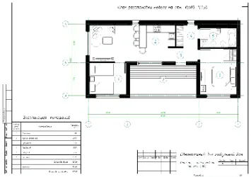
Размер дома: 12,5 х 6,0 х 3,56 м


Площадь застройки: 67,4 м2
Дом собирается из трех типовых модулей.

Планировка:

  • Кухня-гостиная - 21,1 м2
  • Детская - 8,1 м2
  • Прихожая - 2,9 м2
  • Гардероб - 3,2 м2
  • Санузел - 5,0 м2
  • Спальня - 11,7 м2
  • Крыльцо - 15,4 м2

Строительство ПОД КЛЮЧ за 30 дней с учетом доставки и монтажа. Срок монтажа - 2 дня. Оставьте заявку, мы согласуем подробную смету, утвердим материалы внешней и внутренней отделки, зафиксируем стоимость и начнем строить ваш дом!

Технические характеристики

Наши дома спроектированы с учётом современных строительных норм и климатических условий. Мы используем прочный металлический каркас, энергоэффективные утеплители, надёжные отделочные материалы и инженерные решения, которые обеспечивают комфортное круглогодичное проживание. 


Конструктив модульного здания выбранного метража

Конструкция пола: сэндвич-панель 200 мм, внутренняя отделка пола - ламинат, пол санузлов - керамогранит.
Конструкция стен: внутренняя отделка стен - фанера масло, металлокаркас, сэндвич-панель 150 мм, навесной фасад - вертикальный планкен или HPL пластик.
Конструкции перегородок: металлокаркас, звукоизоляция, внутренняя отделка - фанера масло.
Конструкция кровли: внутренняя отделка, сэндвич-панель 200 мм, рулонная гидроизоляция, водосточная система.

Конструктив террасы

Конструкция кровли крыльца и террасы: деревянный каркас, металлочерепица.
Конструкция пола крыльца и террасы: металлокаркас, террасная доска HPL 15 мм.

Оборудование санузла

Входит: душевая кабина стеклянная, раковина, унитаз инсталляция, зеркало, бойлер 80 л, стиральная машина Веко.

Электрооборудование и освещение

Входит: светильники 26 шт., выключатели, розетки, тёплый пол.

Вентиляция

Вентиляция: бризер приточный - 1 шт., вентилятор вытяжной - 2 шт., плит-система Monroe - 2 шт. (кондиционер).

Внутренняя отделка 

Кухня

Стены: влагостойкие панели или моющаяся краска (на выбор), фартук из керамогранита или ПВХ-панелей под плитку
Потолок: натяжной (белый матовый)
Пол: износостойкий ламинат или кварцвиниловая плитка
Дополнительно: выводы под технику и сантехнику, розетки в рабочей зоне

Гостиная

Стены: декоративные панели или моющаяся краска
Потолок: натяжной (белый матовый)
Пол: ламинат

Спальня

Стены: однотонная моющаяся краска
Потолок: натяжной(белый матовый)
Пол: ламинат или кварцвиниловая плитка

Санузел

Стены: керамогранит
Потолок: натяжной (белый матовый)
Пол: керамогранит
Дополнительно: сантехника включена, установка бойлера/водонагревателя — по проекту

Прихожая

Стены: моющаяся краска или панели с повышенной износостойкостью
Потолок: натяжной (белый матовый)
Пол: керамогранит или влагостойкий ламинат

Дополнительные опции


Фундамент
фундамент на вашем участке
Мебель
мы можем полностью укомплектовать ваш дом
ДОПОЛНИТЕЛЬНЫЕ модулИ
дОБАВЬТЕ КОМНАТЫ ПОСЛЕ ЗАВЕРШЕНИЯ СТРОИТЕЛЬСТВА
CRM-форма появится здесь